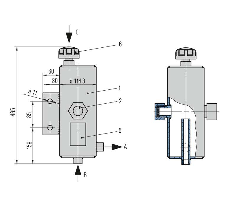
Item Description
1 Storage tank (capacity 3 l)
2 Sight glass
5 Name plate
6 Filter and breather

Connections
A To the mechanical seal
B From the mechanical seal
C Filling

QFT3000

Features

Quench fluid supply systems are used to supply single or tandem mechanical seals. They act as a convenient fluid reservoir. The exchange of fluid takes place by the thermosiphon principle or by forced circulation, e.g. with a pumping screw. The QFT3000 stainless steel tank is equipped with a sight-glass for monitoring the MIN filling level and can be fastened with a lug fixture.

Supply of mechanical seal based on API 682 / ISO 21049, Plan 51.

Advantages

  • Two sight-glasses fitted on opposite sides enable optimum reading of the fluid level and condition of the medium
  • Tank made of 1.4571: high resistance to corrosive media
  • Return flow via integrated rising pipe for selective current control
  • Combined filling and ventilation filter in the quench fluid tank for reliable operation

Functional description

Quench fluid systems are employed:
  • to absorb leakage
  • to monitor the leakage rate (e.g. through periodic reading of the level in the tank)
  • to lubricate and to cool the outboard mechanical seal in a tandem arrangement
  • to prevent icing
  • to protect against dry running
  • to stabilize the lubricating film
  • to exclude air from the media in order to prevent a reaction with oxygen in the air

Notes

Install the quench fluid tank approx. 1 ... 2 m (3.3 ... 6.6 ft) above the mechanical seal. Install connection pipes to the mechanical seal with low flow resistance. Pipes must vent automatically in the direction of the tank. It is imperative that air pockets are prevented. The minimum filling level must always be above the connection socket at the side (in the case of the thermosiphon principle).
Quench fluid systems can be operated in two different modes.



Product variants

Designation QFT3000-00 QFT3000/M001
Standard design
Volume (liters) 3 3
Allowable pressure Pressureless Pressureless
Allowable temperature -40 °C ... +120 °C
(-40 °F ... +248 °F)
-40 °C ... +120 °C
(-40 °F ... +248 °F)
Material, tank:
1.4571
Material, filling filter
Glass-fibre reinforced polyamide
Material, inspection glass
Borosilicate/PTFE
Process connections
G 1/2"

Other versions on request.

Similar products

QFT1000

Quench fluid supply systems are used to supply single or tandem mechanical seals. They act as a convenient fluid reservoir. The exchange of fluid takes place by the thermosiphon principle or by forced circulation, e.g. with a pumping screw. The QFT1000 is made of transparent polyethylene, complete with clips made of stainless steel. The QFT1000 is resistant to water, glycerine, glycols and methanol; not resistant to mineral oils and toluene.

Supply of mechanical seal based on API 682 / ISO 21049, Plan 51.

QFT2000

Quench fluid supply systems are used to supply single or tandem mechanical seals. They act as a convenient fluid reservoir. The exchange of fluid takes place by the thermosiphon principle or by forced circulation, e.g. with a pumping screw. The QFT2000 stainless steel tank is equipped with sight-glasses for monitoring the MIN/MAX level and can be fastened with a lug fixture. The leakage overflow can be selectively discharged.

Supply of mechanical seal based on API 682 / ISO 21049, Plan 51.

QFT6000

Quench fluid supply systems are used to supply single mechanical seals. They act as a convenient fluid reservoir. The QFT6000 stainless steel tank is equipped with a sight-glass for monitoring the MIN/MAX filling level and can be fastened with a lug fixture.

Supply of mechnical seal in accordance with API 682 / ISO 21049, Plan 51.
Contact

Inquire about individual solutions

We develop and produce customer-specific special and individual solutions for every application.

Inquire now Discover reference projects
Back to the overview